Biệt thự - anh Sơn - Tây Hồ

  • Tổng diện tích: 220m2
  • Chi phí: 2,3 tỷ
  • Loại hình công trình: Biệt thự
  • Địa chỉ: Tây Hồ - Hà Nội
  • Diện tích: 110m2/sàn
  • Thời gian hoàn thành: 9 tháng.

Dự án thiết kế và thi công biệt thự - anh Sơn - Tây Hồ - Hà Nội.

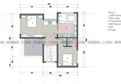
Yêu cầu thiết kế và công năng mặt bằng.

  • Tầng 1 : 1 Phòng khách + 1 Phòng bếp + 1 vệ sinh + Sân đỗ ô tô
  • Tầng 2 : 2 Phòng ngủ + 1 Phòng vệ sinh + sân phơi.

Giải pháp của LU House.

  • Với nhu cầu thiết kế thi công một biệt thự nhỏ, đáp ứng nhu cầu cho 3 người trong gia đình. Công năng cơ bản của các không gian được thống nhất nhanh với chủ đầu tư. Phần vỏ ngôi nhà được sử dụng đá một cách tinh tế để hiện hữu những đường nét mạnh mẽ theo phương thẳng đứng. Nội thất trong nhà sử dụng gỗ óc chó cao cấp. Ngôi nhà đang trong giai đoạn hoàn thiện và sắp đi vào sử dụng.

Mọi chi tiết xin vui lòng liên hệ

LU House – Thiết kế và thi công nội ngoại thất chuyên nghiệp
Địa chỉ: 146 Hoàng Công Chất, Bắc Từ Liêm, Hà Nội
Điện thoại: 097 585 88 33
Email: luc86vn@gmail.com
Facebook: https://www.facebook.com/noithatluhouse
Website: https://noithatluhouse.com

Điền thông tin nhận tư vấn và báo giá ngay

Vui lòng điền thông tin dưới đây, chúng tôi sẽ liên hệ lại báo giá cho quý khách.

TƯ VẤN MIỄN PHÍ097.585.8833